6.jpg
Главная Проекты кухни

Реализованные дизайн проекты

В этом разделе представлены эскизы и замеры реализованных проектов кухня на заказ.

Мы намеренно не указываем цены в разделе, так как заказать кухню можно используя различные материалы и комплектующие. При этом цена может значительно отличаться. Даже для приблизительного расчета стоимости лучше связаться с дизайнерами в наших магазинах или прислать ваши наброски или эскизы с размерами по факсу (812)327-47-56 или описание почтой В этом случае вы получите наиболее полную информацию о цене и сможете более подробно обсудить нужную вам комплектацию.

Все планировки кухни можно условно разделить на пять типов это:

Однорядная кухня. все модули кухни расположены в ряд. Обычно такая кухня используется в маленьких помещениях

Угловая кухня. Модули кухонной мебели распологаются вдоль двух стен. Для небольшого квадратного помещения позволяет вместить довольно большую по объему кухню.


П-образная кухня мебель распологается вдоль трех стен Очень удобная планировка все рядом все под рукой. Если помещение большое третьей стороны может и не быть,тогда часть мебели расположенная не у стены просто отделит пространство кухни от остального помещения.
Двухрядная кухня если помещение выделенное под кухню проходное можно поступить и так
Островная кухня Если помещение большое, то часть кухонной мебели можно расположить отдельно. Обычно на середину выносится стол с раковиной или плитой. уместно вынести и барную стойку.

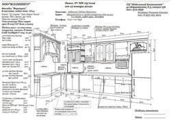
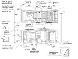
кухня на заказ № МК 125-1112

кухня на заказ № МК 21-0212

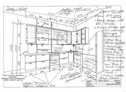
Двухрядная кухня размер 3960x2906

Заказ на кухню принят - "Мебельный континент", Варшавская 3 Секция 156 тел. 972-1836

 

Подробнее...

 

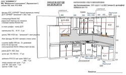
кухня на заказ № МК 88-1109

кухня на заказ № МК 88-1109

Кухня прямая размер 4150

Заказ на кухню принят - "Мебельный континент", Варшавская 3 Секция 156 тел. 972-1836

 

Подробнее...

 

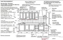
кухня на заказ № МК 87-1109

кухня на заказ № МК 87-1109

Кухня прямая размер 2336

Заказ на кухню принят - "Мебельный континент", Варшавская 3 Секция 156 тел. 972-1836

 

Подробнее...

 

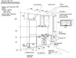
кухня на заказ № МК 64-1106

кухня на заказ № МК 64-1106

Кухня прямая размер 3210

Заказ на кухню принят - "Мебельный континент", Варшавская 3 Секция 156 тел. 972-1836

 

Подробнее...

 

кухня на заказ № 152/02

кухня на заказ №152/02

кухня прямая размер 2500

Заказ на кухню принят - «Аквилон» ул. Новолитовская, д.15б 1-й этаж, секция 8 тел.: none

 

Подробнее...

 

кухня на заказ № 151/01

кухня на заказ №151/01

кухня прямая размер 4040

Заказ на кухню принят - «Аквилон» ул. Новолитовская, д.15б 1-й этаж, секция 8 тел.: none

 

Подробнее...

 

кухня на заказ № 150/01

кухня на заказ №150/01

кухня прямая размер 4800

Заказ на кухню принят - «Аквилон» ул. Новолитовская, д.15б 1-й этаж, секция 8 тел.: none

 

Подробнее...

 

кухня на заказ № 149/01

кухня на заказ №149/01

кухня прямая размер 4470

Заказ на кухню принят - «Аквилон» ул. Новолитовская, д.15б 1-й этаж, секция 8 тел.: none

 

Подробнее...

 

кухня на заказ № A 114/07

кухня на заказ № A 114/07

Прямая кухня размер 2745

Заказ на кухню принят - «Аквилон» ул. Новолитовская, д.15б 1-й этаж, секция 8 тел.: none

 

Подробнее...

 

кухня на заказ № A 106/06

кухня на заказ № A 106/0

Прямая кухня размер 2745

Заказ на кухню принят - «Аквилон» ул. Новолитовская, д.15б 1-й этаж, секция 8 тел.: none

 

Подробнее...

 

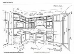
кухня на заказ № МК 21-0212

кухня на заказ № МК 21-0212

Островная кухня размер 5014x2270x1800

Заказ на кухню принят - "Мебельный континент", Варшавская 3 Секция 156 тел. 972-1836

 

Подробнее...

 

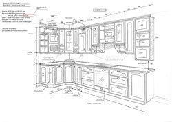
кухня на заказ № МК 18-0212

кухня на заказ № МК 18-0212

Островная кухня размер2030x2550

Заказ на кухню принят - "Мебельный континент", Варшавская 3 Секция 156 тел. 972-1836

 

Подробнее...

 

кухня на заказ № МК 15-0212

кухня на заказ № МК 15-0212

Островная кухня размер2030x2550

Заказ на кухню принят - "Мебельный континент", Варшавская 3 Секция 156 тел. 972-1836

 

Подробнее...

 

кухня на заказ № МК 80-1108

кухня на заказ № МК 80-1108

Островная кухня размер 3400x3150x1600

Заказ на кухню принят - "Мебельный континент", Варшавская 3 Секция 156 тел. 972-1836

 

Подробнее...

 

кухня на заказ № МК 57-1106

кухня на заказ № МК 57-1106

Островная кухня размер 4650 и 1200х600

Заказ на кухню принят - "Мебельный континент", Варшавская 3 Секция 156 тел. 972-1836

 

Подробнее...

 

кухня на заказ № 143/01

кухня на заказ №143/01

Угловая кухня размер 1900х2900

Заказ на кухню принят - «Аквилон» ул. Новолитовская, д.15б 1-й этаж, секция 8 тел.: none

 

Подробнее...

 

кухня на заказ № МК 08-0112

кухня на заказ № МК 08-0112

Островная кухня размер 3400x3150x1600

Заказ на кухню принят - "Мебельный континент", Варшавская 3 Секция 156 тел. 972-1836

 

Подробнее...

 

кухня на заказ № МК 36-1104

кухня на заказ № МК 36-1104

Кухня угловая размер 1556х2480x1256

Заказ на кухню принят - "Мебельный континент", Варшавская 3 Секция 156 тел. 972-1836

 

Подробнее...

 

кухня на заказ № МК 20-0212

кухня на заказ № МК 20-0212

Островная кухня размер 2824x2084x1150

Заказ на кухню принят - "Мебельный континент", Варшавская 3 Секция 156 тел. 972-1836

 

Подробнее...

 

кухня на заказ № МК 81-1108

кухня на заказ № МК 80-1108

Островная кухня размер 935x2790x1740

Заказ на кухню принят - "Мебельный континент", Варшавская 3 Секция 156 тел. 972-1836

 

Подробнее...

 

кухня на заказ № МК 19-0212

кухня на заказ № МК 19-0212

Кухня угловая размер 2290х1520

Заказ на кухню принят - "Мебельный континент", Варшавская 3 Секция 156 тел. 972-1836

 

Подробнее...

 

кухня на заказ № МК 17-0212

кухня на заказ № МК 17-0212

Кухня угловая размер 3400х1450

Заказ на кухню принят - "Мебельный континент", Варшавская 3 Секция 156 тел. 972-1836

 

Подробнее...

 

кухня на заказ № МК 89-1109

кухня на заказ № МК 89-1109

Кухня угловая размер 1880х520

Заказ на кухню принят - "Мебельный континент", Варшавская 3 Секция 156 тел. 972-1836

 

Подробнее...

 

кухня на заказ № МК 78-1107

кухня на заказ № МК 78-1107

Кухня угловая размер 2300х2500

Заказ на кухню принят - "Мебельный континент", Варшавская 3 Секция 156 тел. 972-1836

 

Подробнее...

 

кухня на заказ № МК 76-1107

кухня на заказ № МК 76-1107

Кухня угловая размер 2820х2790

Заказ на кухню принят - "Мебельный континент", Варшавская 3 Секция 156 тел. 972-1836

 

Подробнее...

 

кухня на заказ № МК 73-1107

кухня на заказ № МК 73-1107

Кухня угловая размер 2820х2790

Заказ на кухню принят - "Мебельный континент", Варшавская 3 Секция 156 тел. 972-1836

 

Подробнее...

 

кухня на заказ № МК 71-1107

кухня на заказ № МК 71-1107

Кухня угловая размер 1530х3050

Заказ на кухню принят - "Мебельный континент", Варшавская 3 Секция 156 тел. 972-1836

 

Подробнее...

 

кухня на заказ № МК 70-1107

кухня на заказ № МК 70-1107

Кухня угловая размер 1540х2200

Заказ на кухню принят - "Мебельный континент", Варшавская 3 Секция 156 тел. 972-1836

 

Подробнее...

 

кухня на заказ № МК 65-1107

кухня на заказ № МК 65-1107

Кухня угловая размер 3200х1700

Заказ на кухню принят - "Мебельный континент", Варшавская 3 Секция 156 тел. 972-1836

 

Подробнее...

 

кухня на заказ № МК 62-1106

кухня на заказ № МК 62-1106

Кухня угловая размер 2600х2120

Заказ на кухню принят - "Мебельный континент", Варшавская 3 Секция 156 тел. 972-1836

 

Подробнее...

 

кухня на заказ № МК 59-1107

кухня на заказ № МК 59-1107

Кухня угловая размер 2090х1120 есть отдельностоящий элемент - тумба со встроенной микроволновой печью.

Заказ на кухню принят - "Мебельный континент", Варшавская 3 Секция 156 тел. 972-1836

 

Подробнее...

 

кухня на заказ № МК 56-1106

кухня на заказ № МК 56-1106

Кухня угловая размер 1598х4300

Заказ на кухню принят - "Мебельный континент", Варшавская 3 Секция 156 тел. 972-1836

 

Подробнее...

 

кухня на заказ № МК 52-1105

кухня на заказ № МК 52-1105

Кухня угловая размер 1530х3050

Заказ на кухню принят - "Мебельный континент", Варшавская 3 Секция 156 тел. 972-1836

 

Подробнее...

 

кухня на заказ № МК 48-1105

кухня на заказ № МК 40-1104

Кухня угловая размер 1680х3600 с отдельностоящим элементом

Заказ на кухню принят - "Мебельный континент", Варшавская 3 Секция 156 тел. 972-1836

 

Подробнее...

 

кухня на заказ № МК 43-1105

кухня на заказ № МК 40-1104

Кухня угловая размер 1600х2800 с отдельностоящим элементом

Заказ на кухню принят - "Мебельный континент", Варшавская 3 Секция 156 тел. 972-1836

 

Подробнее...

 

кухня на заказ № МК 40-1104

кухня на заказ № МК 40-1104

Кухня угловая размер 2820х2790 с отдельностоящим элементом

Заказ на кухню принят - "Мебельный континент", Варшавская 3 Секция 156 тел. 972-1836

 

Подробнее...

 

кухня на заказ № МК 38-1104

кухня на заказ № МК 38-1104

Кухня угловая размер 1380х1820

Заказ на кухню принят - "Мебельный континент", Варшавская 3 Секция 156 тел. 972-1836

 

Подробнее...

 

кухня на заказ № 148/01

кухня на заказ №148/01

Угловая кухня размер 2000х1560

Заказ на кухню принят - «Аквилон» ул. Новолитовская, д.15б 1-й этаж, секция 8 тел.: none

 

Подробнее...

 

кухня на заказ № 147/01

кухня на заказ №147/01

Угловая кухня размер 1200х2530

Заказ на кухню принят - «Аквилон» ул. Новолитовская, д.15б 1-й этаж, секция 8 тел.: none

 

Подробнее...

 

кухня на заказ № 139/01

кухня на заказ №139/01

Угловая кухня размер 1900х2900

Заказ на кухню принят - «Аквилон» ул. Новолитовская, д.15б 1-й этаж, секция 8 тел.: none

 

Подробнее...

 

кухня на заказ № 118/112

кухня на заказ № 118/112

Кухня прямая размер 4500x1820

Заказ на кухню принят - "Мебельный континент", Варшавская 3 Секция 156 тел. 972-1836

 

Подробнее...

 

кухня на заказ № A 112/07

кухня на заказ № A 112/07

Угловая кухня размер 1780х2890

Заказ на кухню принят - «Аквилон» ул. Новолитовская, д.15б 1-й этаж, секция 8 тел.: none

 

Подробнее...

 

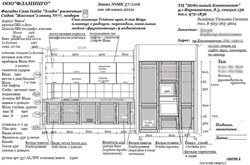
кухня на заказ № МК 050112

кухня на заказ № 0112

Угловая кухня размер 1200х3400

Заказ на кухню принят - Заказ на кухню принят - "Мебельный континент", Варшавская 3 Секция 156 тел. 972-1836

Подробнее...

 

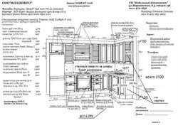
кухня на заказ № МК 0112

кухня на заказ № 0112

Угловая кухня размер 1200х4116

Заказ на кухню принят - Заказ на кухню принят - "Мебельный континент", Варшавская 3 Секция 156 тел. 972-1836

Подробнее...

 

поделиться с друзьями

ВАКАНСИИ


 Яндекс.Метрика Рейтинг@Mail.ru
07.04.2026 - Sitemap.xml